







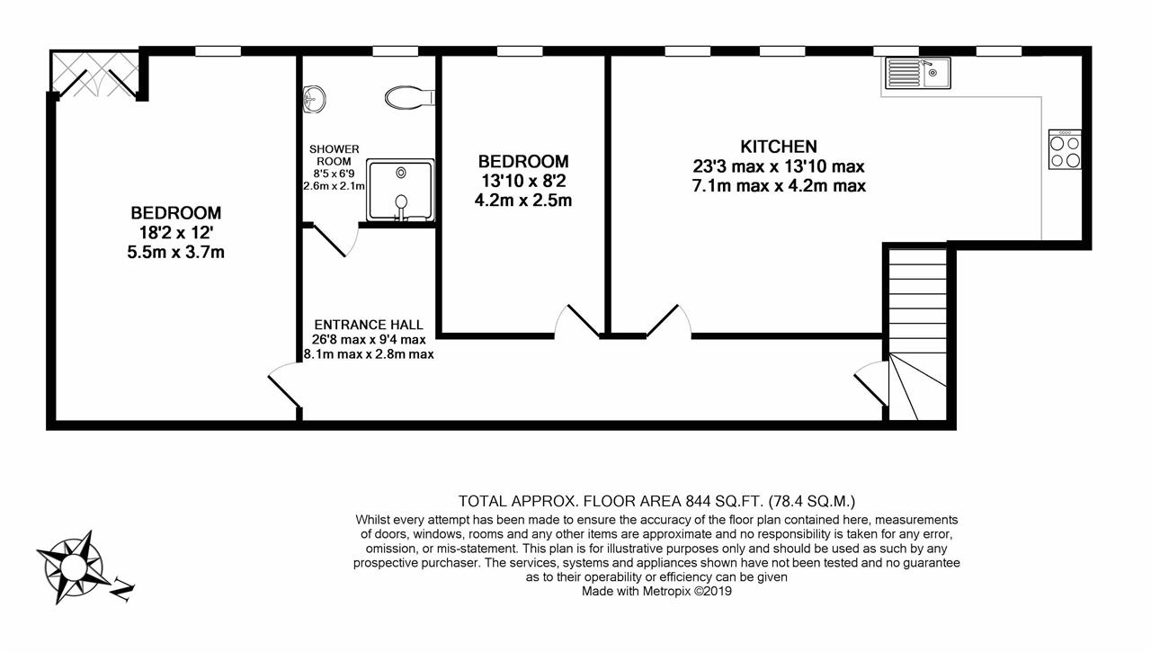
2 Bedrooms 1 Bathroom 1 Reception
Flat
9 Photos
Chiswick, London W4
Available 12 Feb
Unfurnished
TBC Deposit
**Belmont School Catchment Area** Borthwicks are delighted to bring to market this exclusive property which is one of six flats in the heart of Chiswick. This two bedroom flat comprises of a spacious open plan living area with kitchen, a separate double bedroom. Other benefits include double glazing, fully fitted open plan kitchen and engineered wooden flooring throughout plus a juliet balcony. The flat comes with off street parking for one car in a gated court yard with CCTV for added peace of mind. Located just off of the Chiswick High Road it is only a minutes walk to Sainsburys and a 5 minute walk to both Chiswick Park Tube Station or Turnham Green. Available mid August. EPC - D. Council tax - D.Fees apply, see website for full details.
Reference: BOR1001633
Tenant Fees
Borthwicks require one weeks rental amount as a holding fee which is reimbursed towards your deposit on move in. Move in will be pending references and relevant checks. We also require 5 weeks deposit and one months rent before move in. Further info available online or from the staff at Borthwicks.
Disclaimer
These particulars are intended to give a fair description of the property but their accuracy cannot be guaranteed, and they do not constitute an offer of contract. Intending purchasers must rely on their own inspection of the property. None of the above appliances/services have been tested by ourselves. We recommend purchasers arrange for a qualified person to check all appliances/services before legal commitment.
Contact Borthwicks for more details
3 Chiswick Park Station, London, W4 5NF | 0208 994 8441 | paul@borthwicks.co.uk