




















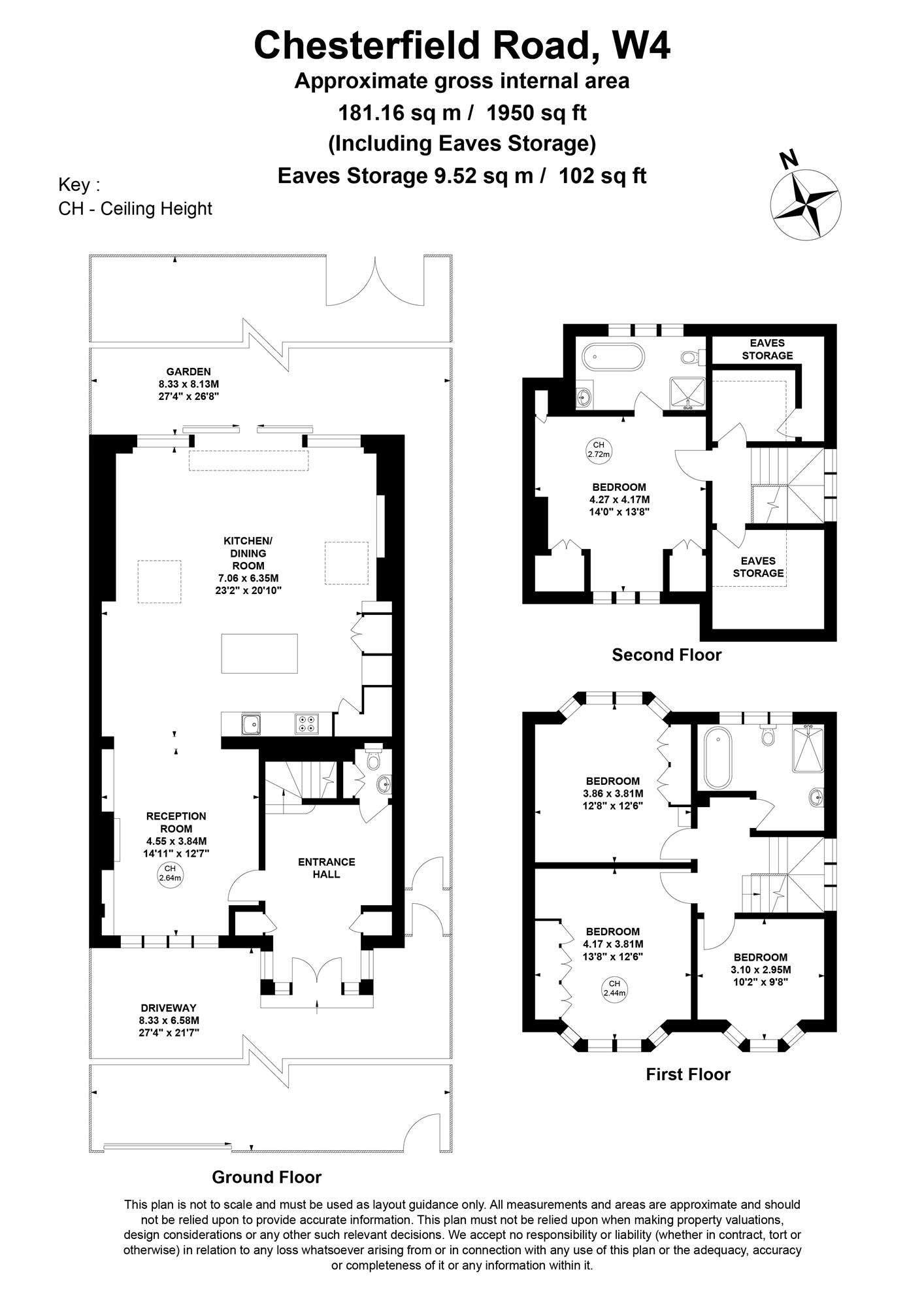
4 Bedrooms 2 Bathrooms 2 Reception
House
22 Photos
Chiswick
Available NOW
Unfurnished
TBC Deposit
**Must be Seen** This beautiful, semi detached house is situated in the desirable and peaceful Chesterfield Road in Chiswick. The property has been recently renovated to a very high standard and comprises of four good sized bedrooms, two receptions, two bathrooms and a private gated driveway. The property has a fully fitted open plan modern kitchen with dining / relaxing area with large sliding doors leading to a well landscaped garden with patio and grassed area and a second open plan reception. With great transport links by both foot and car this property really must be seen. Council tax band: G. EPC Rating: E. Available now.
Reference: BOR1001616
Tenant Fees
Borthwicks require one weeks rental amount as a holding fee which is reimbursed towards your deposit on move in. Move in will be pending references and relevant checks. We also require 5 weeks deposit and one months rent before move in. Further info available online or from the staff at Borthwicks.
Disclaimer
These particulars are intended to give a fair description of the property but their accuracy cannot be guaranteed, and they do not constitute an offer of contract. Intending purchasers must rely on their own inspection of the property. None of the above appliances/services have been tested by ourselves. We recommend purchasers arrange for a qualified person to check all appliances/services before legal commitment.
Contact Borthwicks for more details
3 Chiswick Park Station, London, W4 5NF | 0208 994 8441 | paul@borthwicks.co.uk