











2 Bedrooms 1 Bathroom 1 Reception
Flat
13 Photos
Chiswick
A Stunning Split-Level Two-Bedroom Apartment in The Power House, Chiswick
Set on the top floor of The Power House—a striking Grade II listed building just off Chiswick High Road—this impressive split-level apartment offers stylish living in the heart of W4.
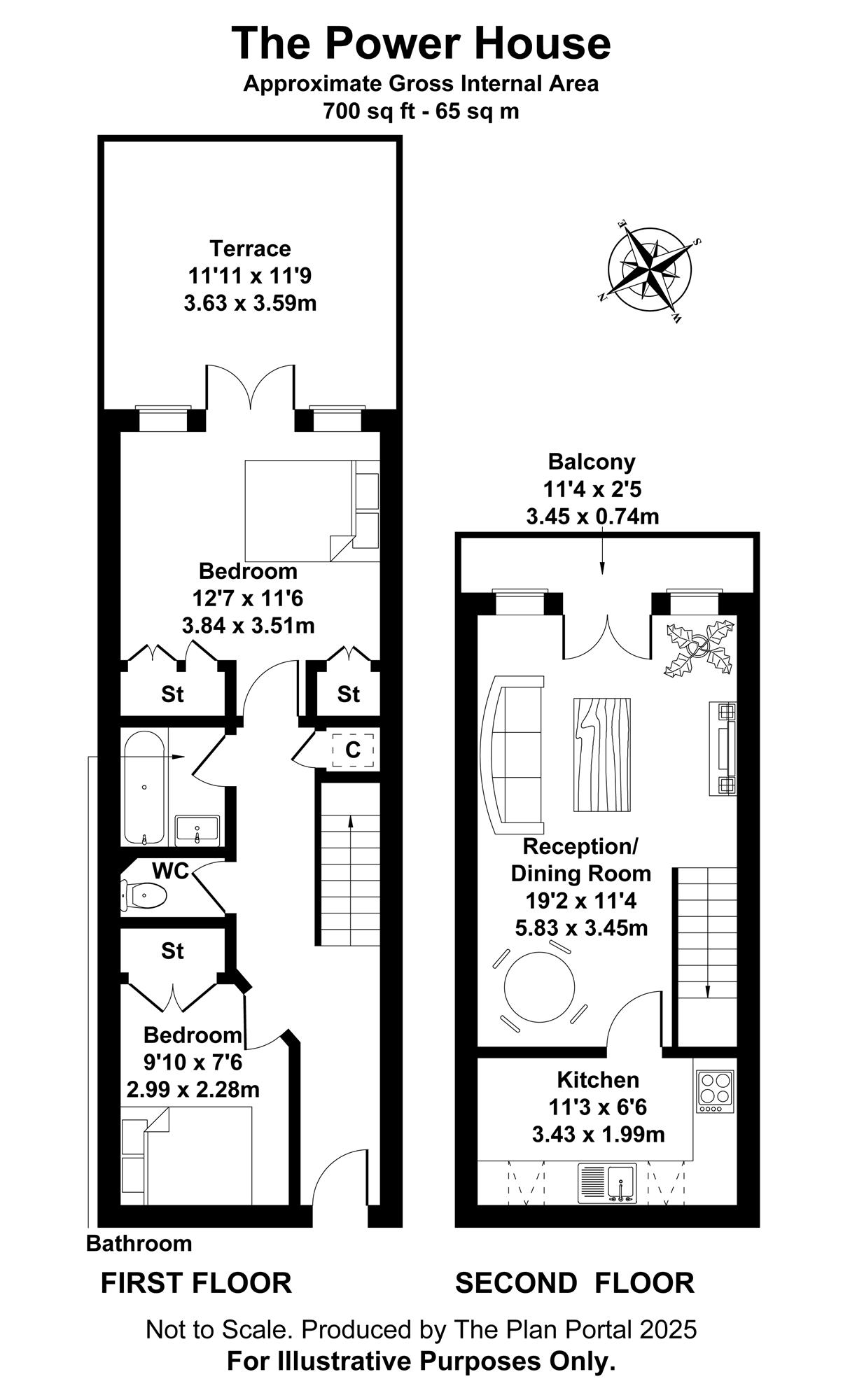
The accommodation comprises two bedrooms, the main bedroom with 2 built wardrobes and benefiting from double doors opening onto a private terrace., second bedroom/ study has built in storage and cosy mezzanine sleeping area , a contemporary bathroom and a separate WC. The upper level features a fully integrated kitchen , a generous dining area, and a bright reception room with sliding doors leading to a Juliet balcony. Further highlights include lift access, a secure allocated underground parking space, and the unique architectural charm expected from a landmark building. Perfectly positioned moments from the exceptional selection of shops, boutiques, cafés, restaurants and bars along Chiswick High Road. Excellent transport options include Turnham Green and Stamford Brook (District Line) stations, alongside numerous bus routes. For motorists, the A4/M4 provides quick access to Heathrow Airport, the M25 and routes to the West.
Additional Information
Leasehold with 149 years remaining
Service charge: £3,326 PA covering buildings insurance and maintenance
Ground rent: £10 PA
Council Tax: Band D – £1,991 PA
EPC rating: D
Lounge 5.83m (19' 2") x 3.45m (11' 4")
Bedroom 3.84m (12' 7") x 3.51m (11' 6")
Study/bedroom 2.99m (9' 10") x 2.28m (7' 6")
Kitchen 3.43m (11' 3") x 1.99m (6' 6")
Terrace 3.62m (11' 11") x 3.59m (11' 9")
Reference: BOR1001601
Disclaimer
These particulars are intended to give a fair description of the property but their accuracy cannot be guaranteed, and they do not constitute an offer of contract. Intending purchasers must rely on their own inspection of the property. None of the above appliances/services have been tested by ourselves. We recommend purchasers arrange for a qualified person to check all appliances/services before legal commitment.
Contact Borthwicks for more details
3 Chiswick Park Station, London, W4 5NF | 0208 994 8441 | paul@borthwicks.co.uk