













2 Bedrooms 1 Bathroom 0 Reception
Flat
15 Photos
Chiswick
This handsome two-bedroom property comes with a Share of Freehold and access to a large, mature rear garden. The building’s communal areas have recently been refurbished, featuring new carpets and fresh décor, while the shared driveway has been beautifully repaved.
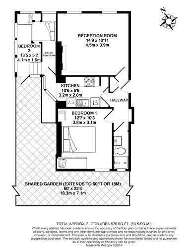
The accommodation comprises two bedrooms: a well-proportioned double and a larger-than-average single with a mezzanine level, adding character and versatility. There is also a generous kitchen, a modern shower room, and a bright, expansive reception room with high ceilings and wooden flooring throughout, creating a light and airy atmosphere that blends period charm with contemporary design.
Further benefits include off-street parking and an excellent location just moments from Chiswick mainline station (with direct services to Waterloo in approximately 30 minutes). Regular E3 bus routes provide easy access to Chiswick High Road and Turnham Green Underground station (District and Piccadilly lines, Zone 2).
The property is well-served by highly regarded local schools and a range of nearby amenities, including a café, hairdresser, newsagent, and deli.
Additional Information:
* Share of Freehold with a 965-year lease
* Service Charge: £2,700 per annum (includes buildings insurance, maintenance, gardening, and communal cleaning)
* Council Tax: Band D (£1,882 per annum)
* EPC Rating: E
Reference: BOR1001064
Disclaimer
These particulars are intended to give a fair description of the property but their accuracy cannot be guaranteed, and they do not constitute an offer of contract. Intending purchasers must rely on their own inspection of the property. None of the above appliances/services have been tested by ourselves. We recommend purchasers arrange for a qualified person to check all appliances/services before legal commitment.
Contact Borthwicks for more details
3 Chiswick Park Station, London, W4 5NF | 0208 994 8441 | paul@borthwicks.co.uk